> Descrizione
MISANO ADRIATICO – LOCALITA’ SANTA MONICA
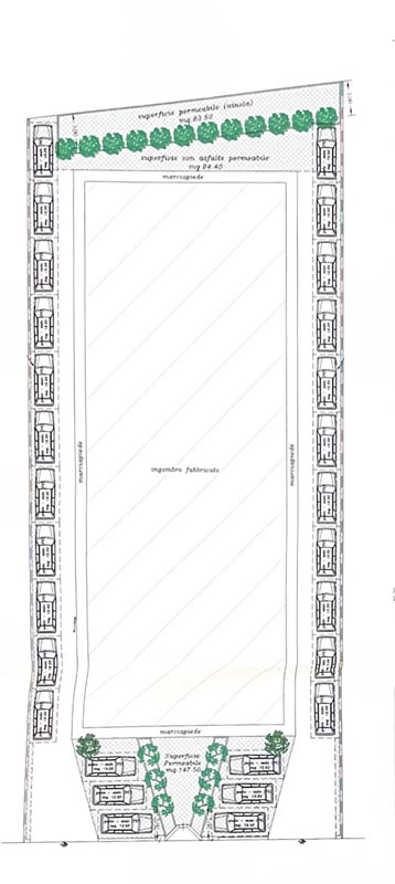
Presso la nuova zona artigianale di Santa Monica vendiamo terreno edificabile ad uso LABORATORIO ARTIGIANALE, per realizzare un capannone di circa 1.000 mq. più soppalco, possibilità di ampliarlo di altri 1.000 mq. se si installa il fotovoltaico.
Presso la nostra agenzia possibilità di visionare i progetti.RIF. 2404 EURO 200.000
La presente inserzione non costituisce elemento
contrattuale, pertanto le informazioni in essa riportante quali descrizione,
planimetrie, misure e posizione sono da ritenersi del tutto indicative e non
potranno essere utilizzate come parte integrante di un eventuale contratto di
vendita della proprietà, non vincolando quindi in alcun modo l’agenzia
immobiliare.
> Caratteristiche
Tipologia
Terreno edificabile
Contratto
Vendita
Superficie
1800 m²
Piano
terra
Locali
1
Bagni
2
Classe energetica
in fase di rilascio
Tavernetta
Si


