> Descrizione
RIMINI – LOCALITA’ MIRAMARE
Al confine di riccione, nei pressi delle terme, a 5 km dal centro di Rimini e a 3 km dal Viale Ceccarini, in zona servita.
Elegante Villa affacciata sul mare con due appartamenti sono disposti uno al piano rialzato e uno al piano primo.La casa è sviluppata su un lotto di circa 650 mq, ed è composta da interrato dove troviamo i garage, un piano seminterrato con lavanderia e tavernetta, piano rialzato appartamento di circa 100 mq. circa, e piano primo appartamento di 95 mq circa con mansarda.
Un corpo staccato di circa 40 mq. completa il valore dell’immobile.
Tutta la casa gode di vista mare.
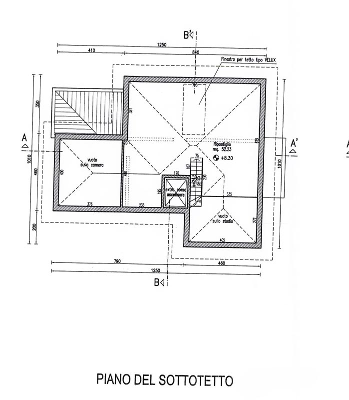
Planimetrie e ulteriori fotografie e informazioni disponibili presso agenzia Elicasa
RIF. 2403 Trattattiva riservata
La presente inserzione non costituisce elemento
contrattuale, pertanto le informazioni in essa riportante quali descrizione,
planimetrie, misure e posizione sono da ritenersi del tutto indicative e non
potranno essere utilizzate come parte integrante di un eventuale contratto di
vendita della proprietà, non vincolando quindi in alcun modo l’agenzia
immobiliare.


