Attico su due livelli NUOVA COSTRUZIONE Riccione Centro

Riccione Centro

Rif. 2509-3

€ 1.395.000




Descrizione

RICCIONE-CENTRO

**NUOVA COSTRUZIONE RICCIONE CENTRO ATTICO E SUPER ATTICO**

Viale Ceccarini mare In contesto tranquillo, a pochi passi dal mare, in zona centralissima.

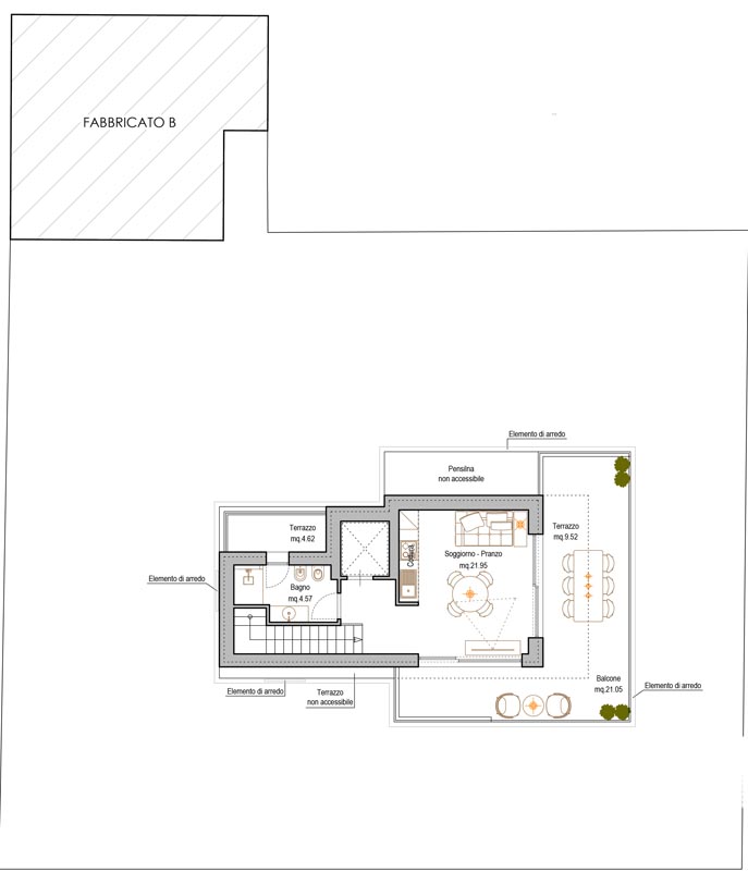
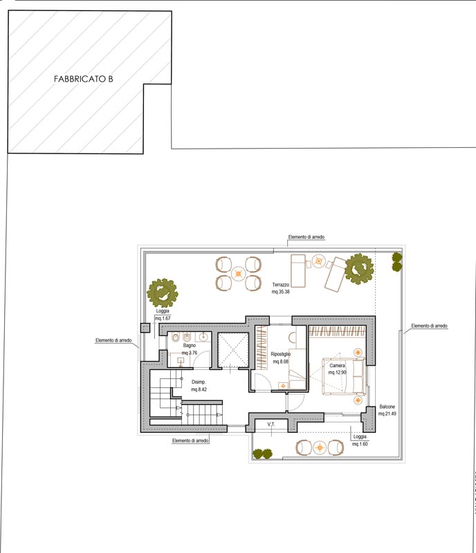
Proponiamo Attico in palazzina con solo quattro unità abitative di pregio di nuova costruzione IN CLASSE A4, che verrà edificata con il massimo confort energetico e sismico.

L'immobile è sviluppato per tutto il terzo ed il quarto piano della palazzina; gode di importanti terrazzi e logge accessibili sia dal reparto giorno (terzo piano), sia dal reparto notte (quarto piano - superattico).

Possibilità di opzionare garage e/o posti auto.

 Soluzione luxury caratterizzata da capitolato moderno e finiture di pregio; immobile ideale per chi è alla ricerca di un contesto di pregio, elegante ed in Centro. 

**CONSEGNA 2025**

RIF. 2509-3 EURO 1.395.000 

Tipo contratto: vendita Superficie: 165 mq
Anno costruzione: 2025 Classe energetica: A4
Camere da letto: 2 Bagni: 2
Piano: su più livelli Ascensore: si
Garage: si Posto auto: si
Posto auto coperto: si Balconi: 1
Terrazzi: 1 Giardino: si

Mappa

Hai qualche domanda?







Ciao! Clicca su uno dei nostri contatti per inviare un messaggio Whatsapp, ti risponderemo il prima possibile.

Chat via WhatsApp